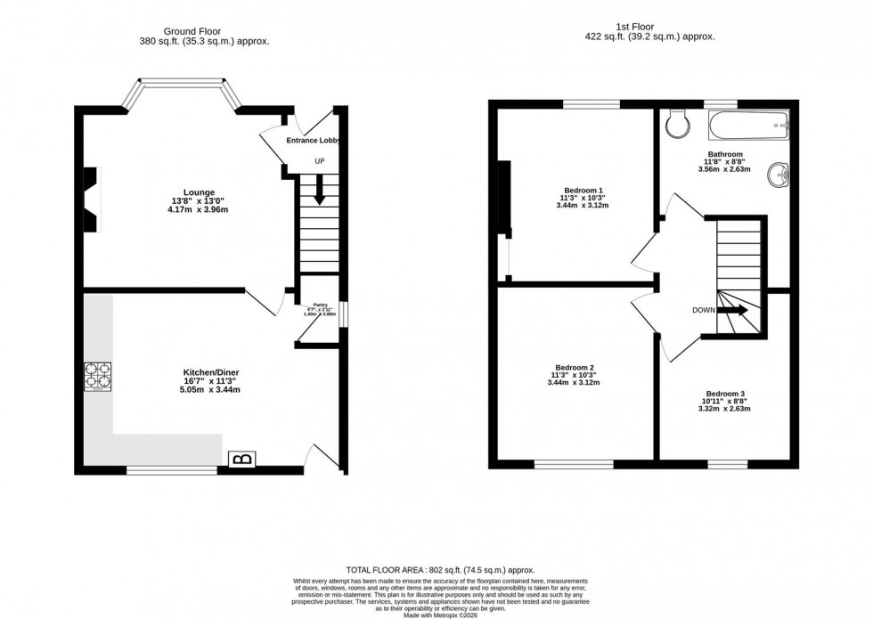
An impressive three bedroom mid terraced house located in this central residential area close to York hospital and nearby schools and amenities as well as frequent bus links to Clifton Moor shopping park and York city centre. The bright and spacious living accommodation comprises; entrance hallway, lounge with bay window, 17ft dining/kitchen with pantry cupboard, galleried landing, three good sized first floor bedrooms and a three piece house bathroom.
To the outside is a front driveway with off street parking with the potential for electric car charging, secure side alleyway and sizeable rear garden with paved patio, lawn and storage. The property also benefits from uPVC double glazing and gas central heating and has an open aspect over the small green crescent to the front.
An accompanied viewing is strongly recommended.

Entrance Hallway

uPVC entrance door, double panelled radiator, carpeted stairs to first floor, power points

Lounge

uPVC bay window to front, electric fire with surround, column radiator, laminate flooring, power points

Kitchen/Dining Room

uPVC glazed door to rear patio, uPVC window to rear, fitted wall and base units, one and half stainless steel sink with draining board and mixer tap, gas hob and electric oven, space for appliances, wall mounted gas combination boiler, pantry cupboard, double panelled radiator

First Floor Landing

Carpeted flooring, loft access

Bedroom 1

uPVC window to front, carpeted flooring, single panelled radiator, storage cupboard, power points

Bedroom 2

uPVC window to rear, laminate flooring, power points, single panelled radiator

Bedroom 3

uPVC window to rear, carpeted flooring, single panelled radiator, power points

Bathroom

Opaque uPVC window to front, low level wc, pedestal wash hand basin, panelled bath with mixer shower head over, towel radiator, vinyl flooring, storage area

Outisde

Driveway for at lest two vehicles, shared side alleyway, rear paved patio, lawn, hedge and fence boundary, brick store, timber shed.
Further on street parking available

Agents Notes

To be able to purchase a property in the United Kingdom all agents have a legal requirement to conduct Identity checks on all customers involved in the transaction to fulfil their obligations under Anti Money Laundering regulations. A charge to carry out these checks will apply. Please ask our branch for further details.

  • Impressive Three Bed Mid Terrace
  • Central Residential Area
  • Close to York Hospital, Nearby Schools and Amenities
  • Frequent Bus Links to Clifton Moor Shopping and York City Centre
  • Bright and Spacious Living Accommodation
  • Council Tax Band: B
  • EPC: D65
Floorplan for Rowntree Avenue, York
EPC Graph for Rowntree Avenue, York
Similar Properties

Get an instant online valuation

Find out how much your property is worth