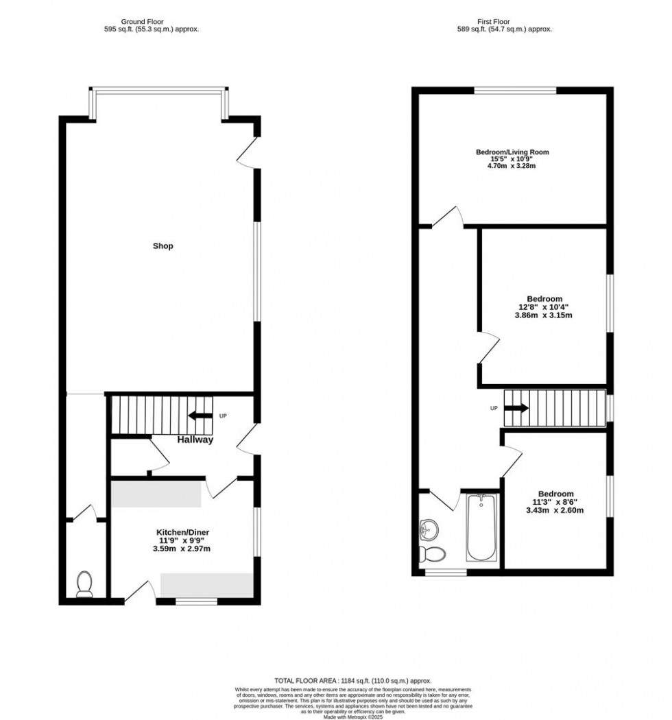
AN OPPORTUNITY TO PURCHASE A LOCK UP SHOP WITH A 2/3 BEDROOM APARTMENT ABOVE, SET ON THIS BUSY SHOPPING PARADE WITHIN THIS LARGE RESIDENTIAL AREA CLOSE TO THE CITY CENTRE. The property comprises; a ground floor lock up shop with two large display windows, store and w.c to rear. The self contained apartment has its own entrance and comprises; entrance hall, dining kitchen, first floor landing, living room/bedroom, 2 further bedrooms and bathroom/w.c. There is a small courtyard to the rear. Ideal investment purchase or for a purchaser looking for a business premises with private accommodation.
  • LOCK UP SHOP WITH A 2/3 BEDROOM APARTMENT ABOVE
  • SET ON A BUSY SHOPPING PARADE WITHIN LARGE RESIDENTIAL AREA CLOSE TO THE CITY CNTRE
  • Self Contained 2/3 Bedroom Apartment with Own Entrance
  • Small Courtyard To Rear
  • Ideal Investment Purchase Or For A Purchaser Looking For Business Premises With Private Accommodation
Floorplan for Burton Stone Lane, York
EPC Graph for Burton Stone Lane, York
Similar Properties

Get an instant online valuation

Find out how much your property is worth