Available Now

This immaculate and beautifully presented three-bedroom furnished terraced home is ideally situated just off Bishopthorpe Road, one of York’s most sought-after locations, within easy walking distance of the train station, city center, and a wide range of local amenities.

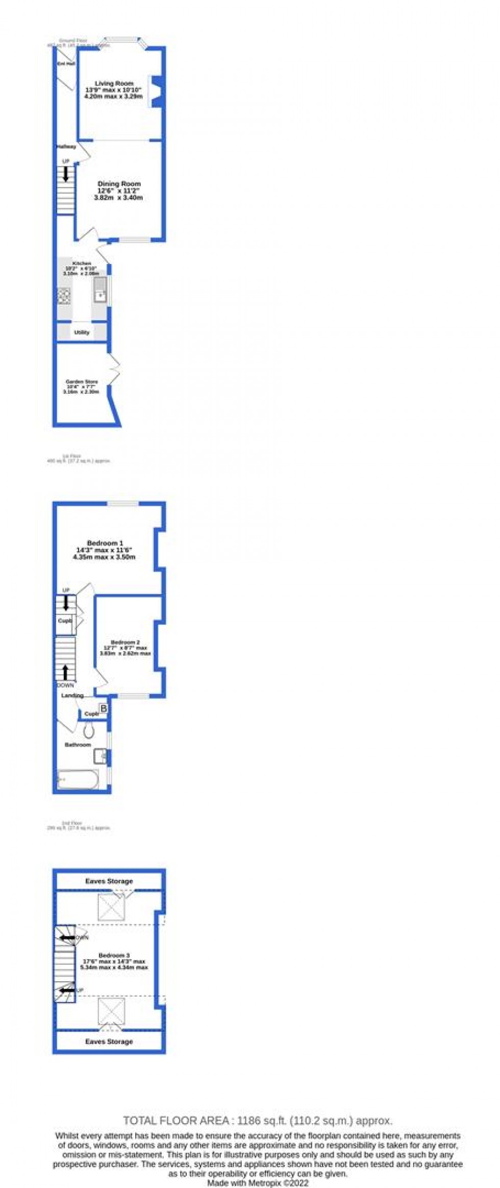
The property opens into a welcoming entrance hallway leading to a spacious and stylish lounge and dining area, perfect for both relaxing and entertaining. To the rear is a modern galley kitchen overlooking the courtyard garden, fully equipped with white goods including a washing machine, separate fridge and freezer, oven and hob, and dishwasher.

Upstairs, the first floor offers two generous double bedrooms and a contemporary family bathroom featuring both bath and shower facilities. A further staircase leads to a versatile loft room, ideal for use as a third bedroom, home office, or study space.

Offered fully furnished, this home is well suited to a professional couple or small family.

Additional Information:
• No smokers
• Pets considered
• Council Tax Band: C
• EPC Rating: D
  • Fully Furnished
  • Highly sought after location
  • 3 large bedrooms
  • Additional attic space
  • Pets considered
  • EPC D
  • Council tax band C
Floorplan for Scott Street, York
EPC Graph for Scott Street, York
Similar Properties

Get an instant online valuation

Find out how much your property is worth