Newly refurbished property - Available from the end of April 2026

Early viewing advised to avoid disappointment.

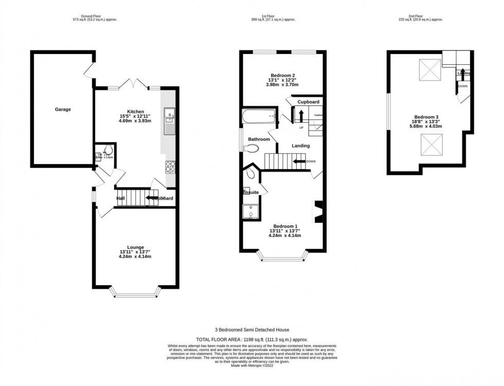
Located on the highly sought-after Moorgarth Avenue near the Knavesmire, this well-presented three-bedroom property offers comfortable living in a quiet residential area, just a short walk from York Racecourse and the scenic riverside walks. Refurbishment works in the last month have seen installations of a new kitchen and bathroom, fully re carpeted and re decorated throughout, and updates to the garden space.

The property features a spacious living area filled with natural light, a well-proportioned brand new kitchen with ample storage and worktop space, and three good-sized bedrooms suitable for a family. A modern new bathroom, along with large loft conversion completes the accommodation.

Outside, the property benefits from a private garden, ideal for relaxing or entertaining, along with convenient on-street parking.

Perfectly positioned for easy access to York city centre, local shops, cafes, and excellent transport links, this home combines peaceful surroundings with city convenience.

Driveway space for at least 2 vehicles
EPC - C
Council Tax band - C

Entrance Hallway

Living Room (3.76m x 3.49m)

Kitchen (4.70m x 2.92m)

Bedroom 1 (3.49m x 2.90m)

Bathroom (2.50m x 1.67m)

Bedroom 2 (3.01m x 2.50m)

Bedroom 3 (3..24m x 3.11m)

Garage

  • Available end of April
  • Newly renovated property
  • Driveway parking
  • Loft conversion
  • EPC - C
  • Council tax - C
Floorplan for Moorgarth Avenue, Tadcaster Road
EPC Graph for Moorgarth Avenue, Tadcaster Road

Get an instant online valuation

Find out how much your property is worth