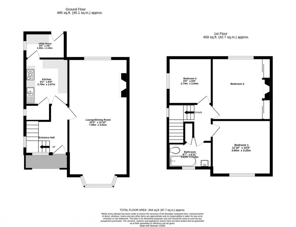
An impressive three bedroom semi-detached house on a very good sized plot located on this residential cul-de-sac close to York city centre, railway centre and Clifton Moor retail park. Also benefitting from nearby schools, sports clubs as well as useful amenities, this well cared for property also benefits from uPVC double glazing and gas central heating. Suitable for a range of buyers, the property comprises; entrance hallway, 23ft lounge/dining room, recently fitted kitchen with pantry, utility room, first floor landing, three first floor double bedrooms and a three piece house bathroom.
To the outside is a generous driveway providing ample off street parking, south facing side lawned garden with single garage, patio and brick store and an enclosed rear garden with patio and artificial turf which is also south facing.
An accompanied viewing of this property is strongly recommended.

Entrance Hallway

uPVC entrance door, laminate flooring, windows to front and side, door to;

Lounge/Dining Room

uPVC bay window to front, fire with surround, two double panelled radiators, laminate flooring, TV and power points, uPVC window to rear

Kitchen

Recently fitted wall and base units with Oak countertop, five ring gas hob, one and half sink with draining board and mixer tap, uPVC window to side, space for appliances, pantry cupboard, vinyl flooring, power points. The kitchen and appliances are less than a year old.

Utility Room

uPVC glazed door to rear garden, wall mounted gas combination boiler, uPVC window to side, plumbing for washing machine, power points

First Floor Landing

uPVC window to side, carpeted flooring, loft access

Bedroom 1

uPVC window to rear, fitted wardrobes, period fire, laminate flooring, double panelled radiator, power points

Bedroom 2

uPVC window to front, carpeted flooring, double panelled radiator, power points

Bedroom 3

uPVC window to side, laminate flooring, double panelled radiator, power points

Bathroom

Opaque uPVC window to front, panelled bath, wash hand basin, low level WC, storage cupboard, radiator

Outside

Front driveway for at least 7 vehicles and the potential for electric car charging, detached single garage with up and over door and power and lighting, side lawn with patio, timber fence and hedge boundary, rear enclosed garden with artificial turf, flower borders, timber fence boundary and paved patio, outside tap. Both garden areas are south facing.

Agents Notes

To be able to purchase a property in the United Kingdom all agents have a legal requirement to conduct Identity checks on all customers involved in the transaction to fulfil their obligations under Anti Money Laundering regulations. A charge to carry out these checks will apply. Please ask our branch for further details

  • Impressive 3 Bedroom Semi-Detached Property
  • Good Sized Plot
  • 23 ft Lounge/Dining Room
  • Recently fitted kitchen and appliances
  • Located in a Residential Cul-De-Sac
  • Close to York City Centre, Railway Station
  • Two south-facing gardens
  • Well Cared for Property
  • Council Tax Band: C
  • EPC: D68
Floorplan for Lister Way, York
EPC Graph for Lister Way, York
Similar Properties

Get an instant online valuation

Find out how much your property is worth