Available March 2026

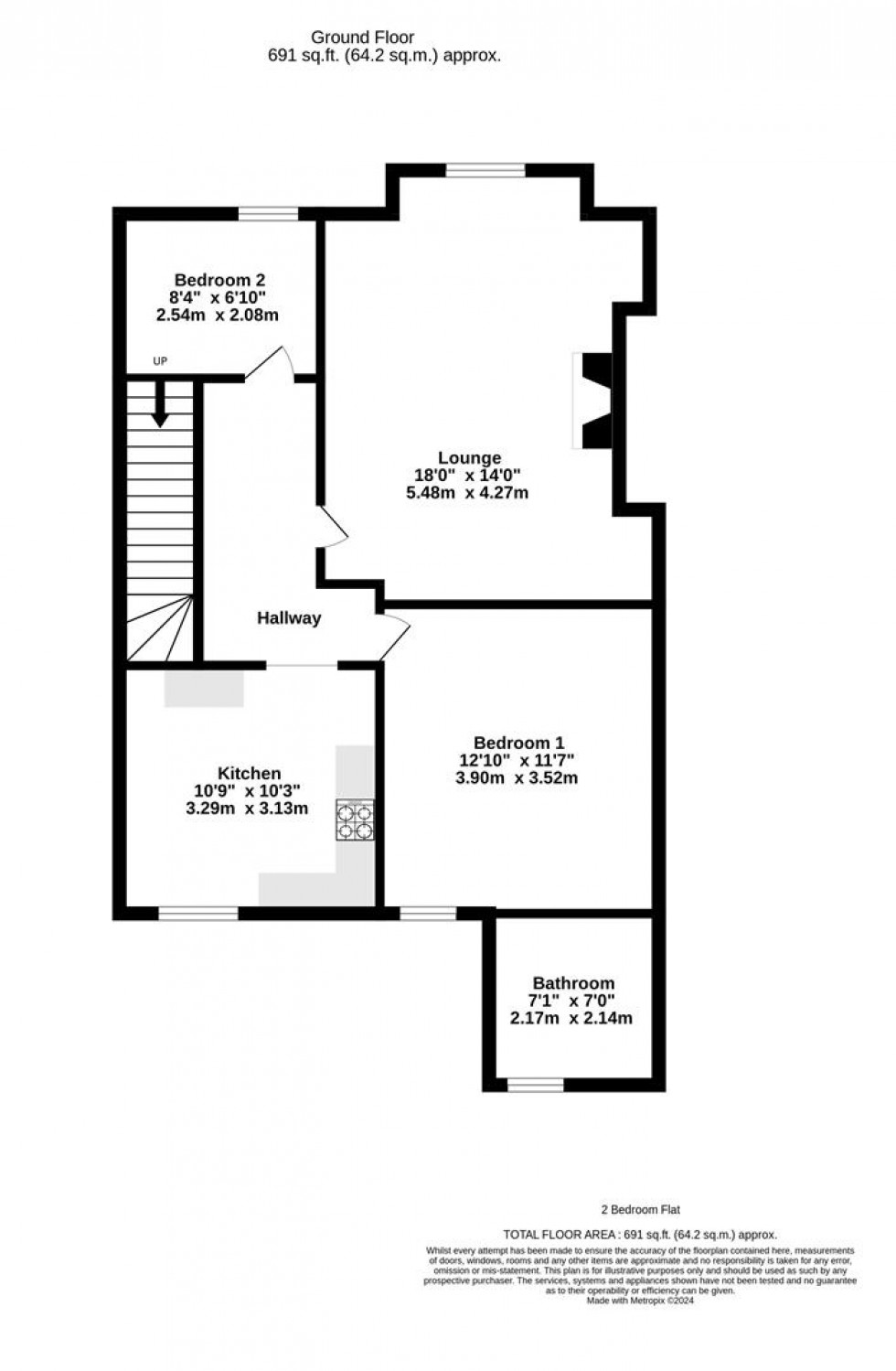
**(Please be aware that the second bedroom in this property is a box room and will struggle to fit a single bed in. Please also be aware that the only bathroom is off the main bedroom so this property would only be suitable for single occupancy or a couple. Please refer to the floorplan for clarification.)**

A well-presented first floor one bedroom apartment with an additional study room, ideally located in the highly attractive and sought-after South Bank area of York.

The apartment offers bright and comfortable living accommodation, featuring a spacious living area, a well-proportioned double bedroom, and a useful separate study—ideal for home working, storage, or a dressing room. The kitchen and bathroom are neatly arranged and finished in a neutral style throughout.

Situated close to Bishopthorpe Road, the property benefits from a fantastic location just south of the city centre, within easy walking distance of York railway station, local shops, cafes, and riverside walks along the Ouse. The area is particularly popular for its character streets, strong community feel, and excellent access to both the city centre and major transport links.

EPC Rating C
Council Tax Band A
No pets
  • Large first floor apartment
  • Close to Bishopthorpe road
  • Ensuite bathroom
  • EPC - C
  • Council tax - A
  • On street parking
Floorplan for FFF Scarcroft Hill, Scarcroft Road
EPC Graph for FFF Scarcroft Hill, Scarcroft Road
Similar Property

Get an instant online valuation

Find out how much your property is worth