NO ONWARD CHAIN.

A modern and well-proportioned one-bedroom ground-floor apartment with allocated parking, set within a central and highly convenient riverside development close to York’s historic city centre. The property is ideally located near local shops, supermarkets, and a wide range of amenities.

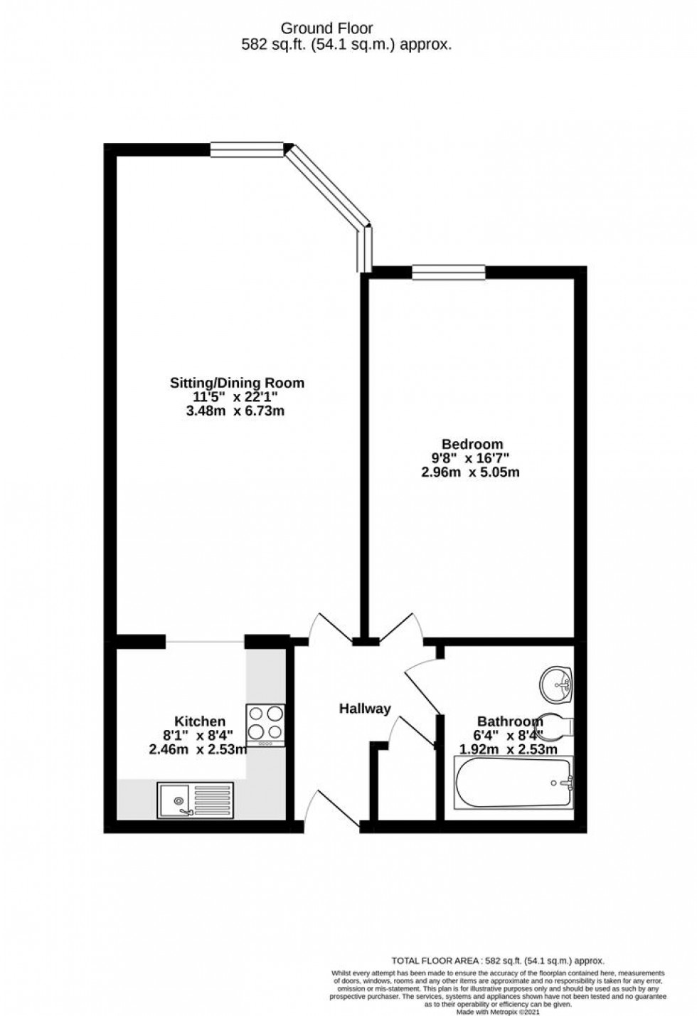
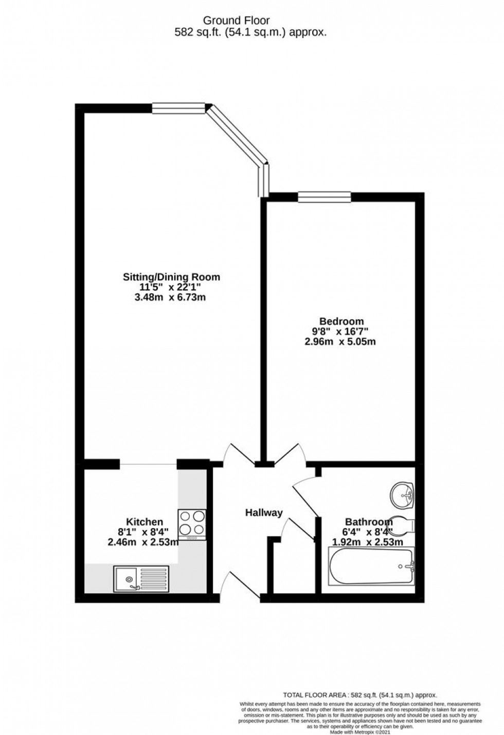
Appealing to both owner-occupiers and investors, this spacious apartment is accessed via a secure communal entrance and briefly comprises an entrance hall, a generous 22’ lounge/dining room with glazed doors opening onto a private terrace, a fitted kitchen, a double bedroom, and a contemporary three-piece bathroom.

Externally, the property benefits from a front terrace, well-maintained communal gardens, views toward the River Foss, secure storage, and designated parking.

An accompanied viewing is highly recommended to appreciate the location and accommodation on offer.

Hallway

Sitting/Dining Room (3.48m x 6.73m)

Kitchen (2.46m x 2.54m)

Bedroom (2.95m x 5.05m)

Bathroom (1.93m x 2.54m)

Agents note:

To be able to purchase a property in the United Kingdom all agents have a legal requirement to conduct Identity checks on all customers involved in the sales transaction to fulfil their obligations under Anti Money Laundering regulations. A charge to carry out these checks will apply. Please ask our office for further details.

  • NO ONWARD CHAIN
  • Spacious ground Floor Apartment
  • Designated parking and well-maintained communal gardens
  • Located near local shops, supermarkets, and a wide range of amenities
  • Front terrace
  • Generous 22' lounge/dining room
  • Council Tax Band: B
  • EPC: C75
Floorplan for Florence House, Eboracum Way, York
EPC Graph for Florence House, Eboracum Way, York
Similar Properties

Get an instant online valuation

Find out how much your property is worth