Churchills are delighted to offer for sale this well maintained two bedroom period mid-terrace house with a good sized rear walled courtyard set in one of York's most sought after residential areas of South Bank. Close to the Knavesmire and in close proximity to the railway station and City Centre, the bright and airy living accommodation also has the benefit of gas central heating and recently upgraded uPVC double glazing.
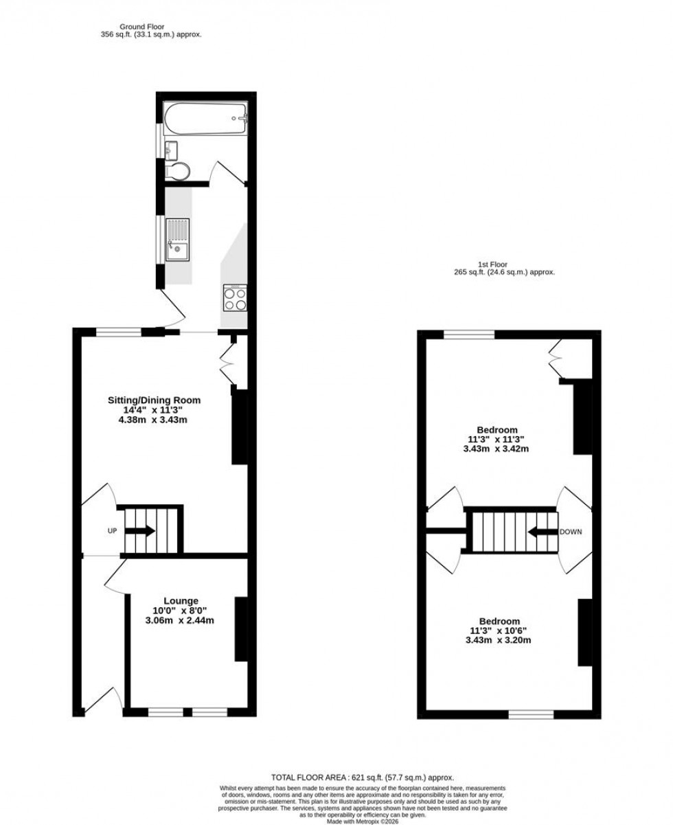
The property briefly comprises; entrance hallway, lounge, sitting/dining room, fitted kitchen, three piece bathroom, first floor landing, two double sized bedrooms, large walled rear courtyard with two timber sheds and gate to service alleyway.
An internal viewing is strongly recommended.

Entrance Hallway

Composite entrance door, laminate flooring, carpeted stairs to first floor

Sitting Room

Two uPVC windows to front, coving, double panelled radiator, laminate flooring, power points

Living/DiningRoom

uPVC window to rear, double panelled radiator, laminate flooring, storage cupboard,, power points

Kitchen

Door to courtyard, uPVC window to side, fitted wall and base units with countertop, stainless steel sink and draining board with mixer tap, built-in oven and hob, tiled flooring, wall mounted gas combination boiler, power points

Bathroom

Opaque uPVC window to side, low level WC, wash hand basin, panelled bath, part-tiled walls, tiled flooring, towel radiator, first floor landing, carpeted flooring, door to;

Bedroom 1

uPVC window to rear, carpeted flooring, wardrobes, double panelled radiator, power points

Bedroom 2

uPVC window to front, double panelled radiator, carpeted flooring, power points

Outside

Rear walled courtyard, two timber sheds, gate to service alleyway

Agents Notes

To be able to purchase a property in the United Kingdom all agents have a legal requirement to conduct Identity checks on all customers involved in the transaction to fulfil their obligations under Anti Money Laundering regulations. A charge to carry out these checks will apply. Please ask our branch for further details

  • 2 Bedroom Mid-Terrace Period Property
  • Good Sized Rear Walled Courtyard
  • Well Maintained
  • Set In One of York's Most Sought After Location
  • Close to The Knavesmire, Close Proximity to Railway Station
  • Council Tax Band B
  • EPC TBC
Floorplan for Curzon Terrace, South Bank
EPC Graph for Curzon Terrace, South Bank
Similar Properties

Get an instant online valuation

Find out how much your property is worth