Available February 16th 2026

This well presented Victorian three bedroom terraced house with heaps of character is located in the very sought after location just off Bishopthorpe Road with many local amenities and within a short distance of the city centre and train station.

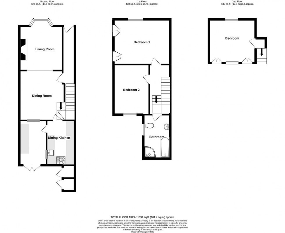
The property comprises a fore courted entrance which leads to an entrance hallway that opens up to an open plan lounge and dining area. This follows onto the kitchen and utility area with white goods including fridge/freezer, washing machine and oven cooker and overlooks the decked courtyard to the rear.

Back in the hallway as you proceed up the stairs is the bathroom with separate bath and shower cubicle and two double bedrooms, one of which is having the carpet replaced shortly. Up the second flight of stairs is a further loft bedroom.

Council Tax Band C. Sorry no pets or smokers.
Floorplan for Nunthorpe Road, York
EPC Graph for Nunthorpe Road, York

Get an instant online valuation

Find out how much your property is worth