*Available Now!*

A beautiful, spacious, two bedroom terraced house set in the popular location of South Bank, close to Bishopthorpe Road with excellent amenities. Also within walking distance to the city centre and easy access to the train station.

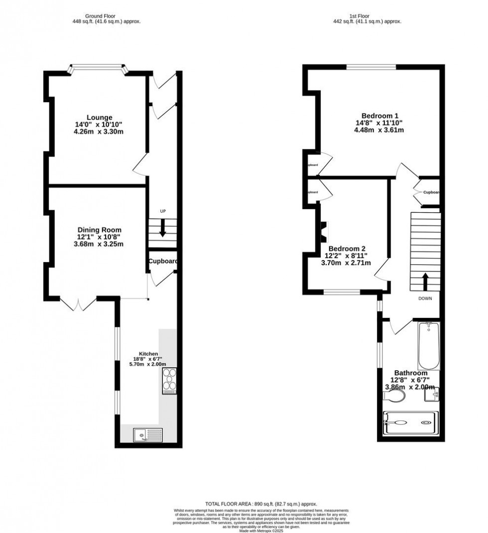
As you enter the property you are immediately welcomed by a stylish Victorian tiled hallway boasting periodic features. This leads into a light and airy living room to the right, with original exposed floorboards and a large Victorian bay window, as well as a rear reception room with French doors overlooking the courtyard.

As you proceed through the dining room, there is a large open-plan modern kitchen conversion, with washing machine and double range style electric oven with gas hob.

Back in the hallway as you proceed up the stairs you are greeted by the master bedroom with fitted wardrobe, and a further double bedroom with feature fireplace. The large landing space also accommodates a sizable fitted cupboard for additional storage.

Finally, this property boasts a large bathroom, with separate walk in shower and bath unit, sink and vanity unity.

Council Tax - Band C
EPC - C
  • Victorian Property
  • Close to Bishopthorpe road
  • Large open plan living space
  • EPC Rating C
  • Two Large Double Bedrooms
  • Period features
Floorplan for Scott Street, York
EPC Graph for Scott Street, York

Get an instant online valuation

Find out how much your property is worth