NO ONWARD CHAIN – TWO BEDROOM MID-TERRACE IN POPULAR SOUTH BANK LOCATION

Situated in the highly sought-after South Bank area of York, the location provides excellent access to local amenities, transport links, and York city centre, making it ideal for first-time buyers or investors alike.

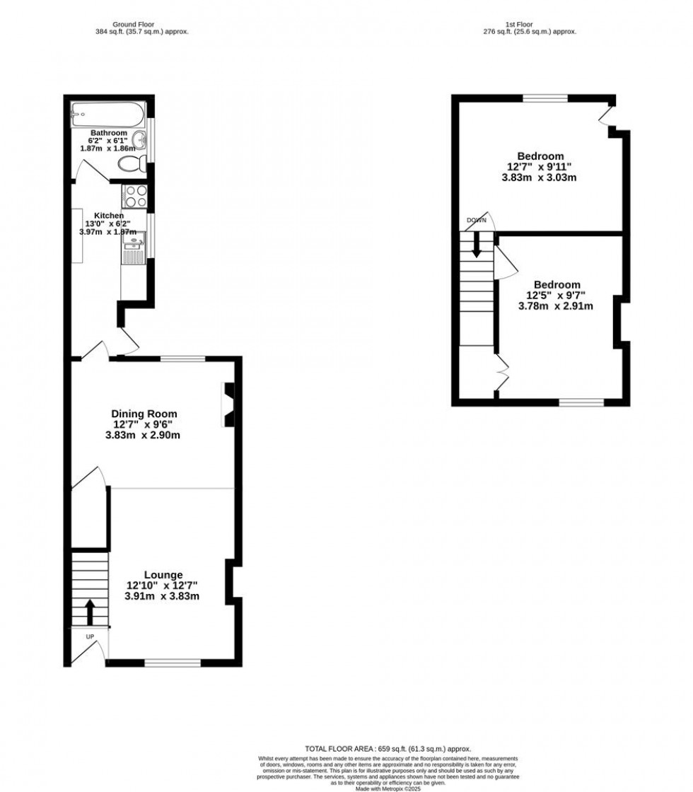
The ground floor features a spacious through lounge, providing versatile living and dining space with plenty of natural light throughout. To the rear lies a fitted kitchen with a range of wall & base units, ample worktop space, and provision for appliances. A modern bathroom fitted with a three-piece suite.
Upstairs, the property offers two generous double bedrooms.

Externally, there is a private enclosed courtyard to the rear. With its convenient location and potential to add further value, this charming home is a fantastic opportunity to enjoy all that South Bank and York have to offer.

Hallway

Lounge (3.91m x 3.83m)

Dining Room (3.83m x 2.90m)

Kitchen (3.97m x 1.97m)

Bathroom (1.87m x 1.86m)

Bedroom 1 (3.78m x 2.91)

Bedroom 2 (3.83m x 3.03m)

  • No Onward Chain
  • 2 Bedroom Mid Terrace
  • Sought After South Bank Location
  • Close to Local Amenities, Shops & Cafes
  • Council Taax Band
  • EPC D
Floorplan for Adelaide Street, South Bank, York
EPC Graph for Adelaide Street, South Bank, York
Similar Properties

Get an instant online valuation

Find out how much your property is worth