NO FORWARD CHAIN! WALKING DISTANCE TO CITY CENTRE! IDEAL FOR FIRST TIME BUYERS AND INVESTMENT BUYERS ALIKE!
We as agents are delighted to have the opportunity to present to the market this delightful period terraced home situated just off Burton Stone Lane, being a stones throw to York's vibrant city centre whilst also having an array of local amenities on the doorstep. The property has been well maintained by the current owner, has Upvc double glazing and gas central heating and the bright and cheery living accommodation briefly comprises: entrance hall, dining room, living room, kitchen with fitted units and wall mounted combination boiler, rear lobby providing access to the rear courtyard a family bathroom completes the ground floor accommodation. Carpeted stairs lead to the first floor and two double bedrooms.
Externally the property boasts a good size, private courtyard garden with access to the service alley via a timber gate.
An early viewing is highly recommended!

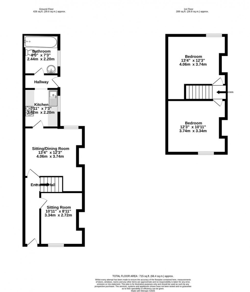
Entrance Hallway

Upvc front door, skirting, laminated flooring

Sitting Room (3.34m x 2.72m)

Coving, Upvc window to front, power points, skirting, laminated flooring.

Dining Room (4.06m x 3.74m)

Coving, Upvc to rear, fire surround, power points, skirting, laminated flooring

Kitchen (2.42m x 2.20m)

Coving, Upvc to side, fitted wall and base units, stainless steel sink and drainer, wall mounted combination boiler, tiled flooring.

Rear Lobby

Power points, tiled flooring, Upvc door to courtyard.

Bathroom (2.44m x 2.20m)

Upvc to side, bath with shower over, glass shower screen, double paneled radiator, basin, low level WC, tiled flooring.

Bedroom 1 (4.06m x 3.74m)

Coving, Upvc to front, double paneled radiator, power points, carpeted flooring.

Bedroom 2 (3.74m x 3.34m)

Coving, Upvc to rear, power points, skirting, carpeted flooring

Outside

Walled courtyard garden, timber gate to service alley

Agents Notes

To be able to purchase a property in the United Kingdom all agents have a legal requirement to conduct Identity checks on all customers involved in the transaction to fulfil their obligations under Anti Money Laundering regulations. A charge to carry out these checks will apply. Please ask our branch for further details.

  • NO FORWARD CHAIN!
  • WALKING DISTANCE TO CITY CENTRE!
  • IDEAL FOR FIRST TIME BUYERS AND INVESTMENT BUYERS ALIKE!
  • Two Double bedrooms
  • Upvc double glazing and gas central heating
  • Living and dining rooms
  • Rear courtyard garden
  • An early viewing is highly recommended!
  • Council Tax Band: B
  • EPC: TBA
Floorplan for Horner Street, York
EPC Graph for Horner Street, York
Similar Properties

Get an instant online valuation

Find out how much your property is worth