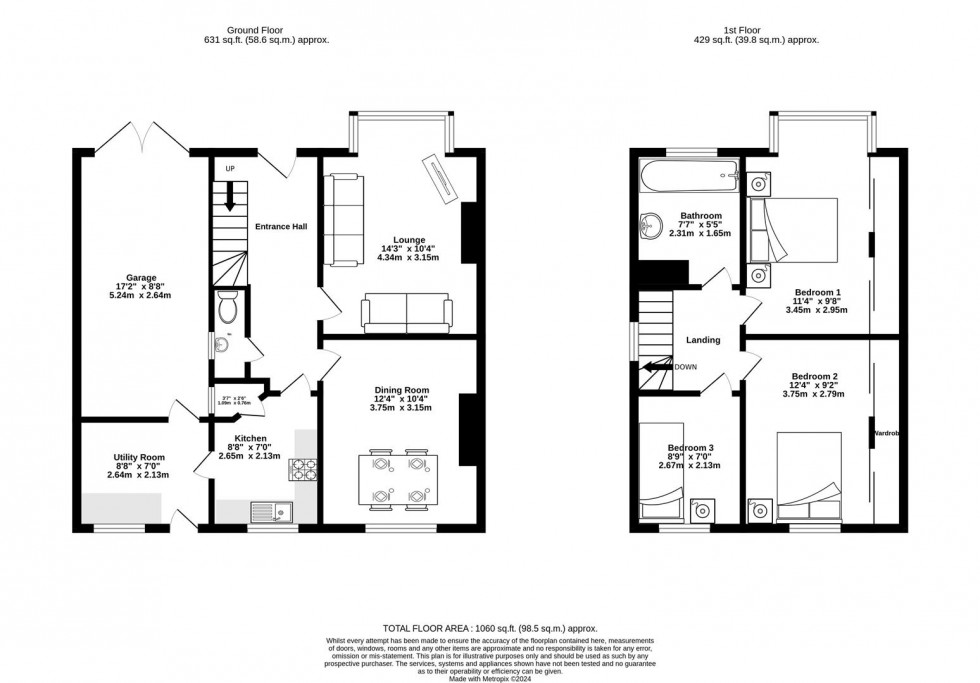
**Three Bed Semi Detached**

Located in a popular area of York just off Fulford Road, with easy access to the A64 and York City centre, this 3 bedroom semi detached property comprises of a living area, separate dining room, and kitchen.

With a downstairs W/C, separate utility space and integral garage, this property offers storage and living accommodation that is suitable for families, young couples or up to two professional sharers. The rear of the property benefits from a large garden. Upstairs, the living accommodation comprises of two double bedrooms with integral storage, a single bedroom to the rear and a family bathroom with bath and sink unit.

Additional storage is available in the loft, which is fully boarded with power.

EPC Rating D

Council Tax C
  • AVAILABLE MID OCTOBER
  • OFF-STREET PARKING
  • GARAGE
  • PRIVATE GARDEN
  • POPULAR AREA OF YORK
  • 3 BEDROOMS
Floorplan for Stirling Grove, Fulford

Get an instant online valuation

Find out how much your property is worth