Welcome to this 3 bed semi-detached home set in a desirable well connected suburban location.
Situated in a sought-after neighbourhood located to the east of the city centre this semi detached property is ideally located for families, professionals or first time buyers. The property is set within a quiet, friendly residential community cul-de-sac and has excellent local amenities and transport links.
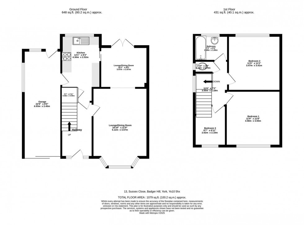
The property features good-sized living accommodation, including a bright and airy lounge with doors leading into the dining room which has French doors to a beautiful south facing rear garden, kitchen and stairs lead to 3 good-sized bedrooms providing comfortable accommodation with plenty of natural light, a family bathroom and separate w.c. Outside, you'll find a low maintenance front garden, a side drive leading to an attached garage and to the rear is a well established garden that attracts many bees and butterflies you can watch whilst relaxing or entertaining. There is also off-street parking to the front.
Located close to highly rated schools, shops, parks and public transport, this home offers an excellent standard of suburban living with everything you need just a short walk or drive away.
Early viewing is highly recommended to fully appreciate all that this property has to offer.

Entrance Hall

Wall lights, central heating radiator, security alarm, coving to ceilings

Kitchen (4.29m x 2.51m)

Full range of base and wall mounted units incorporating roll top surfaces, gas oven point, single sink with mixer tap, window to rear, walk in pantry, part tiled walls

Lounge (5.13m x 3.58m)

Bay window to front, central heating radiator, gas fire in surround, coving to ceiling, ceiling rose, glass doors to:

Dining Room (3.07m x 2.67m)

Coving to ceiling, French doors leading to garden

First Floor Landing

Window to side, loft access

W.C.

Separate w.c. part-tiled walls, tiled floor, window to side

Bathroom (2.18m x 1.65m)

Panelled bath, pedestal wash hand basin, part tiled walls extractor fan, window to rear

Bedroom 1 (3.58m x 3.56m)

Window to front, coving to ceiling, built in wardrobes

Bedroom 2 (3.48m x 3.40m)

Window to rear, coving to ceiling, built in wardrobes, central heating radiator, cylinder cupboard

Bathroom 3 (2.62m x 2.11m)

Window to front, central heating radiator, cupboard over stairs, central heating radiator

Outside

To the front is a low maintenance garden, whilst to the side is a driveway providing off street parking and leading to garage. To the rear is a fully enclosed lawned, well kept garden which is well planted with trees, shrubs, plants and mature borders.

  • Three Bedroom Semi-Detached Home
  • In Desirable and Well Connected Suburban Location
  • Cul-de-sac Location
  • Bright and Airy Living Accommodation
  • Attached Garage and Driveway
  • Beautiful Well Planted and Maintained South Facing Rear Garden
  • Early Viewing is Highly Recommended
  • Council Tax Band: C
  • EPC D
Floorplan for Sussex Close, York
EPC Graph for Sussex Close, York
Similar Properties

Get an instant online valuation

Find out how much your property is worth