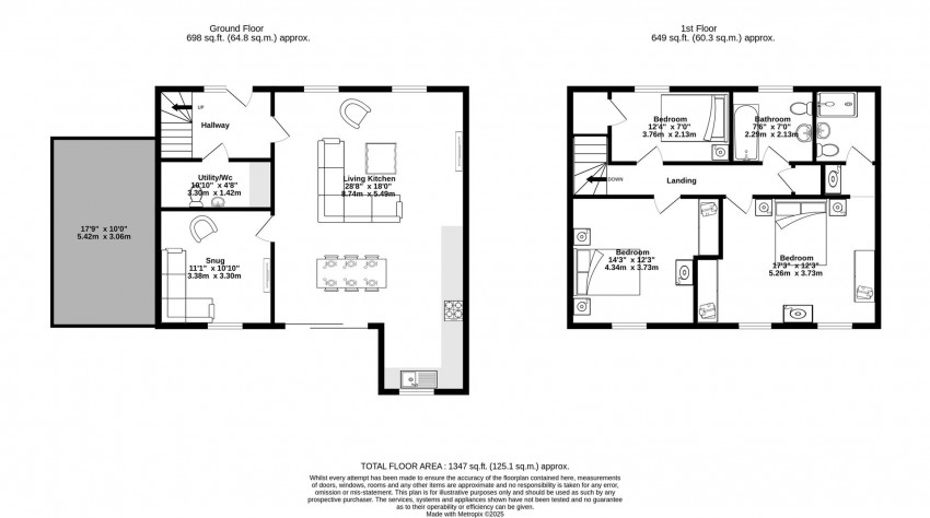
STUNNING CONTEMPORARY NEW BUILD. Set within this exclusive courtyard development located in an elevated position just off the main street in this popular village within Fulford school catchment and with easy access in to York this property is one of four individual properties built to a high standard with modern architectural detail. These eco friendly properties benefit from high levels of insulation coupled with air source heating system and pv solar panels and car ev chargers. With front open aspect and private rear garden the property comprises entrance hall, utility/w.c., large open plan living room with lounge and dining areas with patio doors to garden and kitchen with quality fitted units and integrated appliances, separate family room, landing, 3 bedrooms, master with en suite shower room/w.c., family bathroom/w.c. Front garden with driveway for parking for 2 cars. Carport. Large lawned rear garden. Additional visitor parking spaces.

PRICE LIST

Plot 1 £465,000 SOLD
Plot 2 £495,000
Plot 3 £850,000 SOLD
Plot 4 £820,000

Hallway

Entrance door. Doors to

Utility/Cloaks w.c

Work surface with space for washer and dryer below, wash hand basin, w.c.

Open Plan Living Room

Large open plan space with large living room area with windows to front, dining area with patio doors to rear garden. Door to family room and open to

Kitchen Area

High quality shaker style units with quartz work surfaces and AEG integrated appliances including double oven, hob with extractor above, fridge/freezer and dishwasher

Family Room

Window to rear.

Landing

Airing cupboard. Doors to

Bedroom 1

Large master bedroom with windows to rear. Opening to a vanity area and on to

En Suite

Large walk in shower, wash hand basin and w.c.

Bedroom 2

Another large double room with window to rear.

Bedroom 3

Small double bedroom with built in wardrobe and window to front.

Bathroom

Walk in shower, wash hand basin and w.c.

Outside

Front garden with lawn and boundary hedge. Block paved driveway leading to a contemporary car port. Large rear garden with patio area

Floorplan for Main Street, Thorganby, York
Similar Properties

Get an instant online valuation

Find out how much your property is worth