Charming 2-Bedroom Terrace in Prime Location
This delightful 2-bedroom terrace tucked away on this quiet residential street and offering a perfect blend of comfort and convenience situated in arguably one of York’s most sought after locations and ideally positioned close to a variety of local amenities such as independent shops, restaurants, bars, York city centre and York Railway Station. With a welcoming atmosphere and well-proportioned rooms, this home is perfect for those looking for a cosy living space in a bustling neighbourhood and has been beautifully maintained by the current owners.
The property comprises two spacious double bedrooms – Ideal for small families, couples, or young professionals. With a bright and airy living/dining room offering a comfortable space for relaxing and entertaining. A modern fitted kitchen – with lot’s of natural light and providing plenty of storage.
Private pretty enclosed rear courtyard – a perfect spot for outdoor dining, entertaining and gardening. Perfect Location – within easy walking distance of local shops, schools, parks, public transport, local cafés. Excellent transport links – easy access to nearby bus and train stations.
Perfect for those who want a low-maintenance home without compromising on location or accessibility! Early viewing recommended to appreciate the accommodation on offer.

Agents Notes:
To be able to purchase a property in the United Kingdom all agents have a legal requirement to conduct Identity checks on all customers involved in the transaction to fulfil their obligations under Anti Money Laundering regulations. A charge to carry out these checks will apply. Please ask our branch for further details.

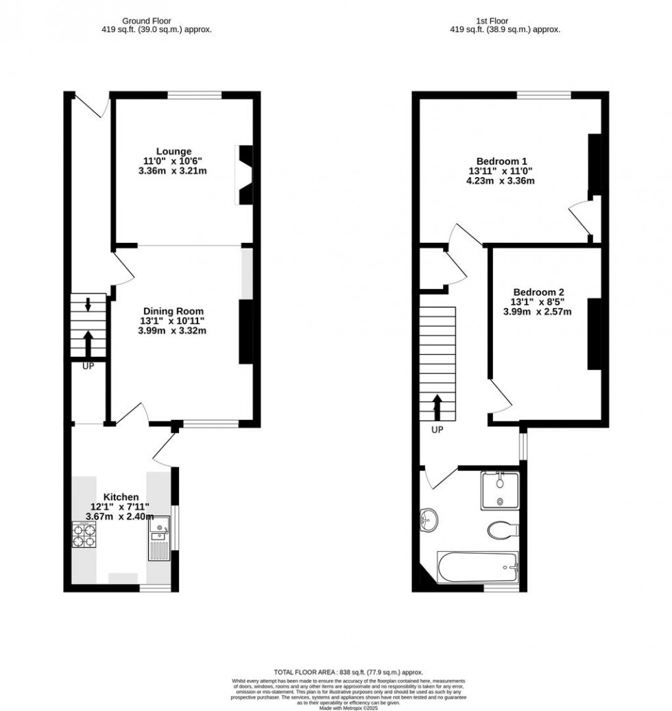
Entrance Hallway

Entrance door, tiled flooring, coving to ceiling, central heating radiator

Lounge

Featuring combi fuel burning stove, uPVC double glazed sash window to front, shutters to window, parquet attic flooring, central heating radiator, TV and power points, opening to;

Dining Room

uPVc double glazed window to rear, shutters to window, built-in original cupboard, parquet amtico flooring, central heating radiator, power points

Kitchen

Well fitted with an excellent range of matching wall mounted and base units incorporating roll top work surfaces, tiled splash backs, built-in electric oven and 4 ring gas hob, extractor fan over, plumbing for washing machine, built-in fridge/freezer, cupboard housing combination boiler, uPVC double glazed window to side and rear, stainless steel sink and draining board, walk-in understaffs cupboard, vinyl flooring, power points

First Floor Landing

Window to side, stripped wood stairwell, loft access with drop down ladder and light

Bedroom 1

uPVC double glazed sash window to front, shutters to window, central heating radiator, power points

Bedroom 2

uPVC sash window to rear, shutter to window, stripped wood flooring, power points

Bathroom

Beautifully presented 4 piece bathroom consisting of slipper bath with mixer tap, sink set in vanity unit, walk-in shower, low level WC, part tiled walls, tiled flooring, spotlights to ceiling, wall mounted towel rail, window to rear

Outside

Fully enclosed pretty sunny rear courtyard garden with patio seating area, pebbled borders, timber gate to service alleyway, brick built outhouse with power

  • Charming 2 Double Bedroom Terrace in Prime Location
  • Offering a Perfect Blend of Comfort and Convenience
  • Situated in Arguably One of York’s Most Sought After Locations
  • Welcoming Atmosphere and Well-Proportioned Rooms
  • Living/Dining Room and Modern Fitted Kitchen
  • Private Pretty Enclosed Rear Courtyard
  • Council Tax Band B
  • EPC D68
Floorplan for Gray Street, York
EPC Graph for Gray Street, York
Similar Properties

Get an instant online valuation

Find out how much your property is worth