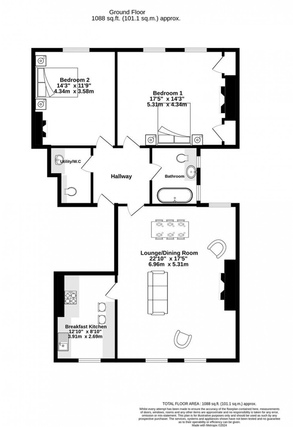
A beautiful two bedroom apartment forming part of this grand period town house located on The Mount which is one of York's most sought after locations. Within a few minutes walk of the city centre and railway station, the entrance to the property is via Driffield Terrace and leads into an ornate hallway with sweeping period staircase to the upper floors. The apartment is located on the second floor and provides bright living accommodation offering a real sense of space with the high ceilings. With an entrance hall, large lounge/dining room with feature marble period fireplace, fully fitted breakfast kitchen, utility/WC, fabulous large master bedroom and generous sized second bedroom both of which have had their windows restored to the original condition and a quality fitted bathroom with a newly installed shower cubicle. As well as retaining many period features the grandeur of this apartment is further enhanced by Thomas Sanderson shutters, cornicing's and refurbished sash windows. This is a superb opportunity to be the home or holiday home of envy.

Please note: Virtually Stage Images
In additional to the photograph's shown, several rooms have also been virtually staged to enable visualisation of how the space could be utilized whilst appealing to an alternative taste if required. The furnishings and décor shown are for illustrative purposes only with the Lounge, Master Bedroom and Hallway images being digitally enhanced.

Hallway

Doors leading to;

Lounge/Dining Room

An impressive reception room with two sash windows to the front overlooking The Mount, further window to rear, ceiling cornicing, fabulous large period fireplace with marble surround and cast iron insert housing living flame gas fire. Hardwood flooring. Door leading to;

Breakfast Kitchen

Quality fitted units comprising base, wall and larder units with solid wood work surfaces and Belfast sink, integrated appliances including double oven, hob, microwave, dishwasher and fridge/freezer.

Utility/WC

Work surfaces and plumbing for washing machine, low level WC.

Bedroom 1

A stunning large master bedroom with cornicing and ceiling rose, 2 sash windows to rear with fitted shutters, original fireplace and built-in wardrobes to alcoves.

Bedroom 2

A generous sized double bedroom with sash window to rear with fitted shutters and original period fireplace.

Bathroom

High quality bathroom suite with feature freestanding bath and mixer shower, corner shower, wash hand basin, WC and window to side

Note:

The freehold has been purchased by the apartment block owners and therefore no ground rent applies.

  • Bespoke Two Bedroom Apartment
  • Forming Part Of This Grand Period Town House
  • Within A Few Minutes' Walk Of The Railway Station & The City Centre
  • An Abundance Of Period Features & High Ceilings
  • Quality Fittings & Fixtures
  • Council Tax Band A
  • EPC D64
Floorplan for Driffield Terrace, The Mount
EPC Graph for Driffield Terrace, The Mount
Similar Property

Get an instant online valuation

Find out how much your property is worth