LAKESIDE HIGH SPEC LODGE WITH HOT TUB - Located within this impressive golf and country park resort in the quiet East Yorkshire countryside, this highly impressive two bedroom lodge is offered for sale in ‘move-in’ condition. Nestled within the park on a favourable plot surrounded by lawn and trees and views over the lake. The property can be used all year round and can easily be used as a holiday home. It is perfectly situated for easy access into the historic City of York and the market town of Pocklington as well as a short drive over the picturesque Yorkshire Wolds to the stunning east coast. There are also onsite amenities including the 9 hole golf course and just a 5 minute walk into Allerthorpe village with its excellent country pub. The internal accommodation fully comprises good sized living room, dining kitchen with fitted appliances, snug, master bedroom with dressing area & en-suite, second double bedroom and bathroom. To the outside is a raised decked area for outside releasing and fantastic sunken hot tub. There is also a driveway for parking. An internal viewing is highly recommended!

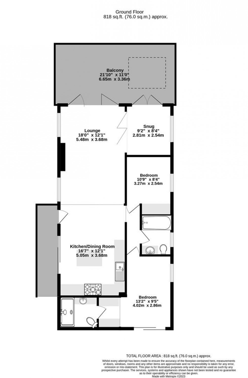
Open Plan Living Kitchen

Lounge area comprising double glazed doors onto balcony, double glazed windows to side, column radiator, TV point, power points. Carpet. Kitchen area comprising fitted wall and base units incorporating counter tops, inset sink and drainer with mixer tap, gas hob, space for appliances, kitchen island, radiator, power point, double glazed sliding doors. Vinyl flooring.

Snug

French doors onto balcony, double glazed windows to side, column radiator, power points. Carpet.

Inner Hallway

Carpet. Door to;

Bedroom 1

Sliding double glazed doors onto front, double glazed window to side, column radiator, TV point, power points. Carpet.

Walk In Wardrobe

Door to;

En-Suite

Opaque double glazed window to front, walk in shower cubicle, wash hand basin with storage, low level WC, double panelled radiator. Vinyl flooring.

Bedroom 2

Double glazed window to side, fitted wardrobes, column radiator, power points. Carpet.

Bathroom

Opaque double glazed window to side, panelled bath with mains shower over, wash hand basin with storage, low level WC, double panelled radiator. Vinyl flooring.

Outside

Raised timber decked area with sunken hot tub, views over the lake, lawn and trees, storage area and driveway.

  • Superb 2 Double Bedroom Lodge
  • Holiday Park
  • Spacious & Modern Living Areas
  • Views Of The Lake
  • Fantastic Sunken Hot Tub
  • Set Within Beautiful Surroundings
  • Located On The 5* Allerthorpe Golf & Park Resort,
  • Onsite Amenities Including The 9 Hole Golf Course
Floorplan for Allerthorpe Golf and Country Club
Similar Property

Get an instant online valuation

Find out how much your property is worth